Double Log Home Heiki
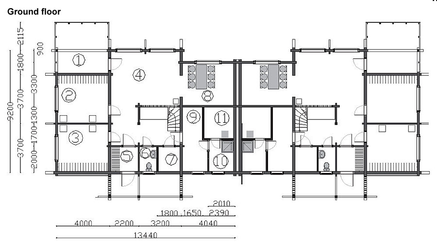
| 1. Terrace – 6,2 m² |
| 2. Bedroom – 13,6 m² |
| 3. Bedroom – 13,6 m² |
| 4. Livingroom – 36,8 m² |
| 5. Entrance – 3,8 m² |
| 6. WC – 2,4 m² |
| 7. Boxroom – 3,1 m² |
| 8. Kitchen – 12,2 m² |
| 9. Wardrobe – 8,2 m² |
| 10. Bath – 4,4 m² |
| 11. Sauna – 5,3 m² |
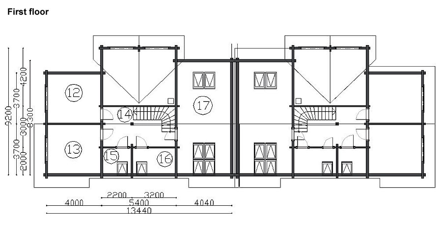
| 12. Bedroom – 13,5 m² |
| 13. Bedroom – 13,5 m² |
| 14. Hall – 15,1 m² |
| 15. Wardrobe – 3,8 m² |
| 16. Bath / WC – 5,7 m² |
| 17. Bedroom – 31,3 m² |
| Inner: 1 side 186,3 m² |
| Terrace: 1 side 6,2 m² |
| Total: 1 side 192,5 m² |
| Inner: 2 side 372,6 m² |
| Terrace: 2 side 12,4 m² |
| Total: 2 side 385,0 m² |