Log Home Eser

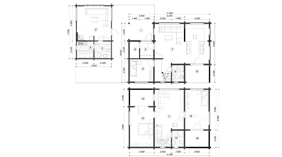
1. Terrace 56,3 m²
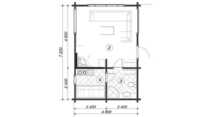
2. Chimney room 21,8 m²
3. Shower 5,2 m²
4. Sauna 5,2 m²
5. Storm porch 4,1 m²
6. Tech room 2,9 m²
7. Living room / kitchen 44,9 m²
8. Bedroom 9,8 m²
9. WC / bath 3,7 m²
10. Terrace 7,7 m²
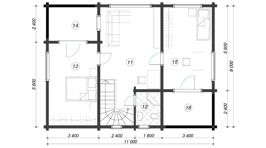
11. Gallery 22,7 m²
12. WC / bath 3,7 m²
13. Bedroom 17,5 m²
14. Balcony 7,1 m²
15. Bedroom 17,5 m²
16. Balcony 7,1 m²
 
Inside: 159,0 m²
Terrace / Balcony: 78,2 m²
Total: 237,2 m²